
INTERIOR DESIGN SPACE PLANNING FINISHES TECHNICAL DRAWINGS
Experience
Designed and managed commercial architecture and interior design projects from the client interviews and schematics, to construction documentation and through to construction administration and client move-coordination. Additionally, designed more than 20 residential buildings & homes for new construction and remodels or additions.
Commercial: Charles Schwab
Shell Architecture and Interior Design
New building design for Charles Schwab, and interior design. Includes exterior building shell, structure, common areas and vertical penetrations. Interior design includes new rooms, space planning, systems furniture specifications, doors and finish schedule, lighting, electrical, plumbing, and more.

Commercial: Health Evolutions
Remodel, Expansion, Interior Design
Working with the property manager to help expand a vacated space within the building, keeping as much existing build-out as possible, and adding new offices, and common areas for Health Evolutions. This was my first project as project manager and interior designer.

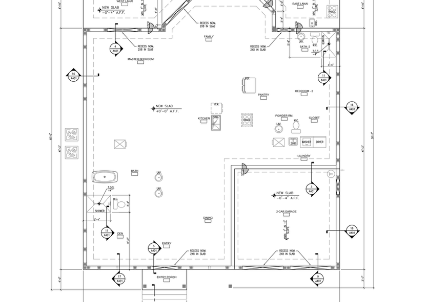
Residential: Chandler Residence
Remodel, Addition, Demo, Interior Design
Updating, adding on, and renovating an existing home for its new owners. Worked performed was site-visit and as-built drawings, elevations, site plan, demo plan, floor plan, electrical plan, foundation, roof and plumbing plans.
Residential: Forest Trail
Remodel, Addition, Demo, Pool, Custom Carpentry
Existing home that the new home owners wanted to expand, add a pool, walk-in pantry, master closet and removal of chimney and fireplace. Work performed includes as-built drawings, interior design, floor plan, demo plan, electrical, HVAC, foundation, plumbing, elevations, pool plan, and interior custom carpentry for shelving.

Residential: Maverick Residence
New Construction
New home design for home owners. Includes floor plans, elevations, roof, electrical, plumbing, HVAC, sections, details, site plan.
Commercial: Vein Clinics of America
Remodel, Expansion, Interior Design
Working with the property manager to space plan for new tenant. Interior design includes new rooms, space planning, demo plan, systems furniture specifications, doors and finish schedule, lighting, electrical, plumbing, and more.
Residential: Town Homes - The Meadows
New Construction, Concept CAD Drawings
Concept drawings for new construction town homes for a developer. My work included the space plans and floor plans, elevations, roof and site plan.

Residential: Town Homes - Ohnstad
New Construction, Concept CAD Drawings
Elevation concepts for a real estate developers new town home development plan. Responsibilities included multiple exterior elevation plans showing both front and rear loading options along with renderings of a variety of finish materials and color combinations.
Commercial: Major General Emmett J. Bean Federal Center
Interior Design for adaptive reuse and renovation
1.6 million square feet of adaptive reuse and renovation. Converted massive military storage building into 1.6 million s.f. of federal and military office space. Primary responsibilities; interior design, space planning, systems furniture design and specifications, finish schedules, way-finding art, signage and 3d visualizations.
Commercial: Eli Lilly Pharmaceuticals
Interior Design for adaptive reuse and renovation
1.5 million square feet of space over a 111-acre campus with 58 buildings. Primary responsibilities included asset tracking of furniture and fixtures, space planning, move coordination, demo, systems furniture design and inventory tracking, warehouse space management and more.
Commercial: The Stutz Building
Interior Design for adaptive reuse and renovation
400,000 square feet of automotive factory space that was built in 1912. Purchased by adaptive reuse developer, Turner Woodard, we worked to restore the existing factory structure, and adapt for modern residential space, retail space, and entertainment venues. Responsibilities included as-built drawings, space planning new spaces, demolition plans, floor plans, ceiling plans, elevations electrical, HVAC, plumbing, fixtures, furniture and finished.











































































































